GRAND 163
Blockhaus
Rundholz Haus Grand 163 - Blockhaus mit Saunabereich
Gemütlichkeit und Komfort: Dieses Projekt bietet ein Blockhaus für den dauerhaften Wohnsitz mit einer Veranda mit Panoramafenstern, die eine Atmosphäre von Gemütlichkeit und Komfort für die ganze Familie schaffen.
Ästhetik und Funktionalität: Die Veranda am Eingang und das Vestibül verleihen dem Haus ein stilvolles Erscheinungsbild sowie einen funktionalen Raum für den Empfang von Gästen.
Wohnkomfort: Ein Heizungsraum mit separatem Eingang sorgt für einfache Bedienung und Wartung der Heizungs- und Warmwassersysteme.
Platz und Bequemlichkeit der Küche: Das Projekt umfasst eine geräumige Küche, die perfekt zum Kochen und zum Verbringen von Zeit mit der Familie geeignet ist.
Moderne Unterhaltungsbereiche: Ein Wohnzimmer mit Zugang zur Veranda und eine verglaste Veranda mit großen Fenstern schaffen einen idealen Raum für Entspannung und Unterhaltung.
Entspannung und Selbstfürsorge: Das Projekt umfasst einen Saunabereich mit Sauna, Dusche und Badezimmer, in dem Sie entspannen und auf Ihre Gesundheit achten können.
Komfortabler Zugang zum zweiten Stock: Die Treppen ermöglichen einen bequemen Zugang zum zweiten Stock, wo es einen geräumigen Flur, zwei Schlafzimmer gibt, von denen eines Zugang zum Balkon hat, sowie ein zusätzliches Badezimmer mit Dusche.
Modernes Design und Praktikabilität: Das Haus hat ein modernes Design, ein Satteldach über dem Haus und ein separates Dach über der Veranda, was die Nutzung des Raumes praktisch und funktional ermöglicht.
Diese Vorteile machen das Grand-Projekt zu einer ausgezeichneten Wahl für diejenigen, die Komfort, Funktionalität und modernes Design in ihrem Blockhaus für den dauerhaften Wohnsitz schätzen.
Hauptmerkmale
- Technologie: Rundholz
- Blockhaus für den dauerhaften Wohnsitz
- Veranda mit Panoramafenstern
- Heizungsraum mit separatem Eingang
- Geräumige Küche
- Wohnzimmer mit Zugang zur Veranda
- Verglaste Veranda mit großen Fenstern
- Saunabereich mit Sauna, Dusche und Badezimmer
- Zwei Schlafzimmer im zweiten Stock
- Schlafzimmer mit Zugang zum Balkon
- Modernes Design mit Satteldach
- Separates Dach über der Veranda
Raumaufteilung
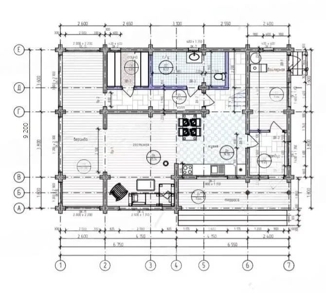
Erdgeschoss
Vestibül
Veranda am Eingang
Geräumige Küche
Wohnzimmer
Verglaste Veranda
Saunabereich
Heizungsraum
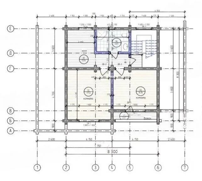
Obergeschoss
Geräumiger Flur
2 Schlafzimmer
1 Badezimmer mit Dusche
Balkon (Zugang von Schlafzimmer)

Grand 163

Planung Grand 163
Skizze 1

Skizze 2

Skizze 3

Skizze 4

Skizze 5

Skizze 6



