Verklebtes Laminatholz und Fachwerkholz in der Bauweise garantieren nicht nur die Haltbarkeit und Stabilität des Hauses, sondern verleihen durch ihre natürlichen Oberflächen auch eine ästhetische Attraktivität.
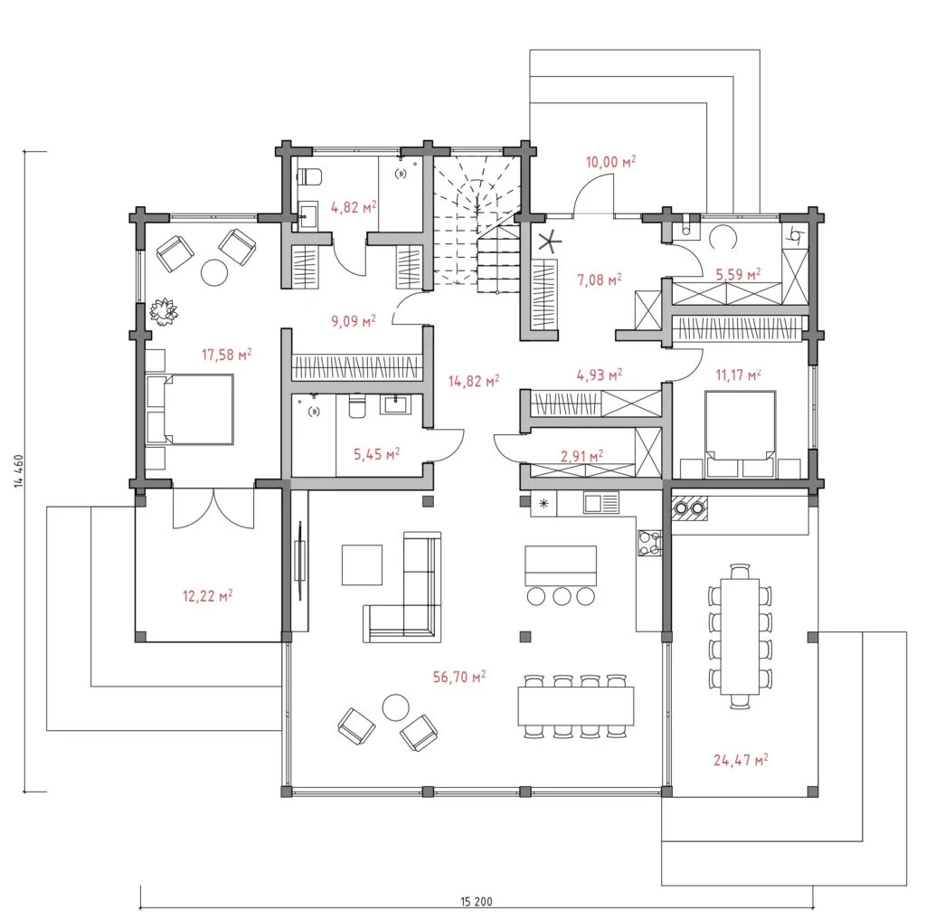
Das Haus hat zwei Stockwerke mit großen Wohnzimmern, die mit Panoramafenstern ausgestattet sind, die spektakuläre Ausblicke auf die umliegende Landschaft bieten. Die Deckenhöhe im Haus beträgt 4,5 Meter, was den Innenräumen ein Gefühl von Offenheit und Licht verleiht. Die Fläche des Inneren beträgt 184,54 m², während Terrassen und Veranden 46,66 m² einnehmen, ideal für Outdoor-Freizeit.
Der Hauptfokus im Innendesign liegt auf einem großzügigen, isolierten Küche-Wohnzimmer, das 80 % der Gesamtfläche des Hauses einnimmt. Küche und Wohnzimmer werden von 80 % natürlichem Licht beleuchtet, was diesen Raum besonders gemütlich macht, um Zeit zu Hause zu verbringen. Die Eingangsgruppe ist von den Hauptwohnbereichen isoliert, was den Bewohnern zusätzliche Privatsphäre bietet.
Zu den Merkmalen des Projekts gehört außerdem ein Grillplatz auf einer Außenterrasse, der ein idealer Ort für Familientreffen oder freundschaftliche Zusammenkünfte ist. Das Projekt sieht die Möglichkeit vor, eine Terrasse mit offener oder geschlossener Verglasung anzurichten, sodass man diesen Bereich bei jedem Wetter nutzen kann.
Dank der Verwendung von verklebtem Laminat ist das Haus hochenergieeffizient und umweltfreundlich. Ein solches Material bietet nicht nur eine ausgezeichnete Wärmedämmung, sondern verleiht der Struktur auch natürliche Schönheit und Langlebigkeit.
Das DELIA-Projekt ist ein Beispiel für ein modernes Zuhause, das Komfort, Geräumigkeit und Harmonie mit der Umgebung verbindet und damit eine ideale Wahl für moderne Familien ist, die Qualität, Platz und Ästhetik schätzen.








