A-Frame A110 - A-Frame Haus mit Panoramafenstern
Einzigartiges Modell mit Panoramafenstern rund um den gesamten Umfang des Hauses. Perfekte Wahl für schöne Grundstücke.
2
1
2
110m²

A-FRAME A110 Außen

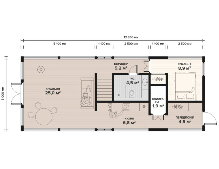
Planung A110
1. Stock

2. Stock

Interior Design
A-FRAME A110




